Lease •
Distribution/Warehouse

5411 IH-10 East

San Antonio,
TX
78201
AVAILABLE SF: 48,000

Ty Bragg

Ford Douglass

PROPERTY DETAILS

508

SUITES

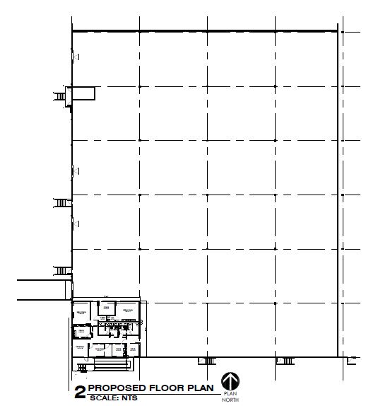
Suite 102
48000 SF
PDF
OFFICE: 2042 SF
WAREHOUSE: 45958 SF
TOTAL SF: 48000 SF
  • *New Spec Office* ±2,042 SF
  • Two (2) Dock-High Doors
  • One (1) Ramped Overhead Door; One (1) Oversized Ramped Door
  • 30’ Clear Height
  • Ability to Add More Dock Doors
101-LEASED to 12/31/28
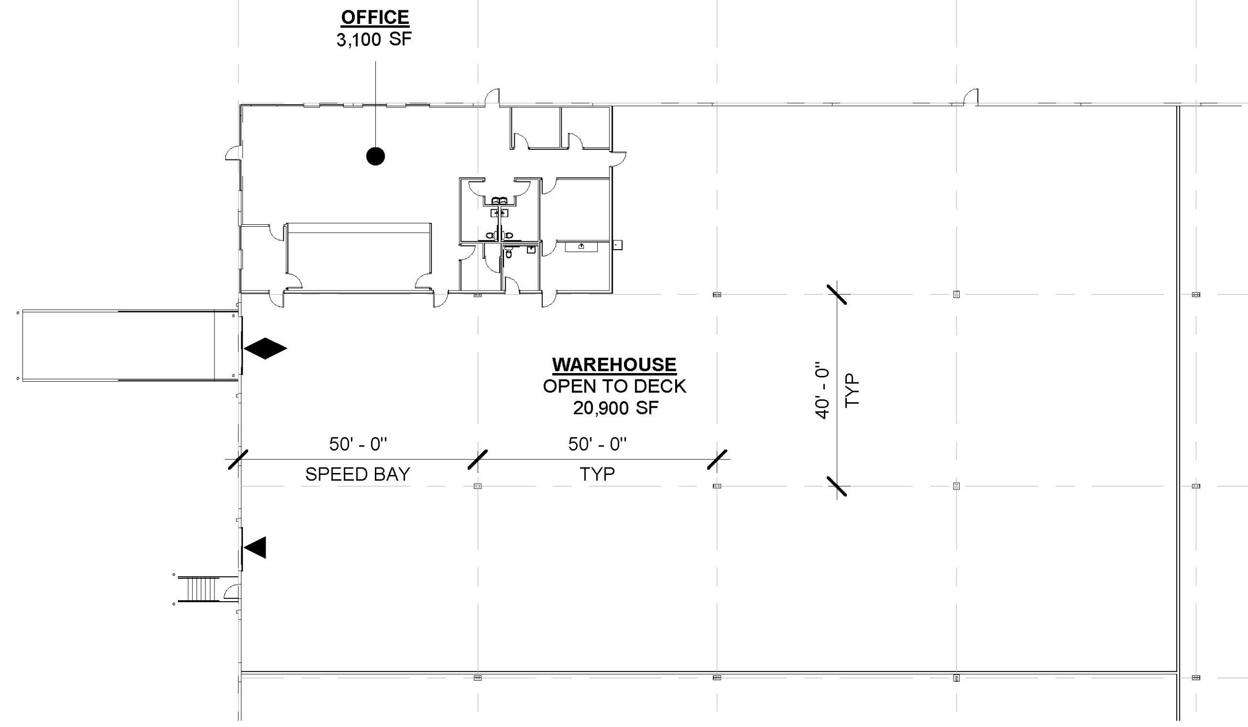
24000 SF
PDF
OFFICE: 3100 SF
WAREHOUSE: 20900 SF
TOTAL SF: 24000 SF
  • Four (4) Dock-High Doors
  • One (1) Ramped Overhead Door
  • 30' Clear Height
  • Available With 30-Day Notice

ADDITIONAL INFO 

4-21-25-aerial-5411-IH-10-E
Aerial
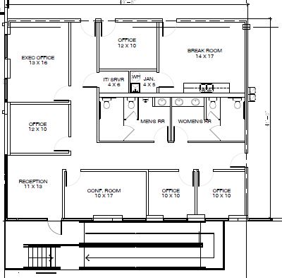
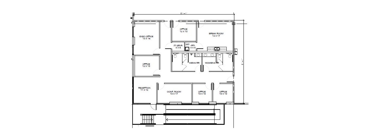
102 - office - floor plan_resize
*New Spec Office* - Suite 102 - ±2,042 SF

RELATED LISTINGS

Warehouse
For Lease
0
SF
6910 NE Loop 410
6910 NE Loop 410,
San Antonio,
Texas,
78219
Warehouse
For Lease
36,800
SF
6508 Tri County Pkwy
6508 Tri County Pkwy,
Schertz,
TX,
78154
Office/Distribution
For Lease
80,324
SF
Northlake Business Park 2B
1500 Northlake Pass,
Universal City,
TX,
78148
MAUREEN JOHNSON

Marketing and Leasing Administrator

Maureen is a licensed real estate professional and oversees all aspects of Marketing at Cavender & Hill Properties, concentrating on crafting and executing strategic marketing initiatives that powerfully showcase the company’s properties and services. Her responsibilities encompass brand marketing, digital marketing, and content marketing. She manages and maintains the company website, ensuring its relevance and effectiveness in conveying the company’s message. 

Before joining Cavender & Hill, Maureen dedicated her skills as an English Language Arts and Reading (ELAR) Teacher. In this role, she played a pivotal part in fostering her students’ writing, reading comprehension, listening, and speaking abilities. Additionally, she gained valuable expertise while serving as an Engagement Manager at a Houston-based technology firm. In this capacity, Maureen efficiently supervised the management and delivery of products and services, providing crucial support to clients in achieving their business objectives.

In addition to her professional experience, Maureen holds a Bachelor of Arts in Communication Arts with a concentration in Journalism and a minor in English from the University of the Incarnate Word. Ms. Johnson is an active member of the CREW (Commercial Real Estate Women) Network, an organization dedicated to supporting, empowering, and advancing women in commercial real estate.