Lease •
Office/Service Center

Wetmore Business Park 5

San Antonio,
TX
78247
AVAILABLE SF: 5,625

Hunter Z. Conger

Lee Jordan, SIOR

Ty Bragg

PROPERTY DETAILS

397

SUITES

Suite 128
5625 SF
PDF
OFFICE: 4672 SF
WAREHOUSE: 953 SF
TOTAL SF: 5625 SF
  • 4,672 SF Office
  • 18' Clear Height
  • 2 Grade-Level Doors
103-LEASED
13500 SF
PDF
OFFICE: SF
WAREHOUSE: SF
TOTAL SF: 13500 SF
122
4500 SF
PDF
OFFICE: SF
WAREHOUSE: SF
TOTAL SF: 4500 SF
124
5625 SF
PDF
OFFICE: 4835 SF
WAREHOUSE: 790 SF
TOTAL SF: 5625 SF
  • 4,835 SF Office
  • 18' Clear Height
  • Two (2) Grade-Level Doors
  • Can Be Combined with Suite 128 For 11,250 SF
124-128
11250 SF
PDF
OFFICE: 9507 SF
WAREHOUSE: 1743 SF
TOTAL SF: 11250 SF
  • 9,507 SF Office
  • 18' Clear Height
  • Four (4) Grade-Level Doors

ADDITIONAL INFO 

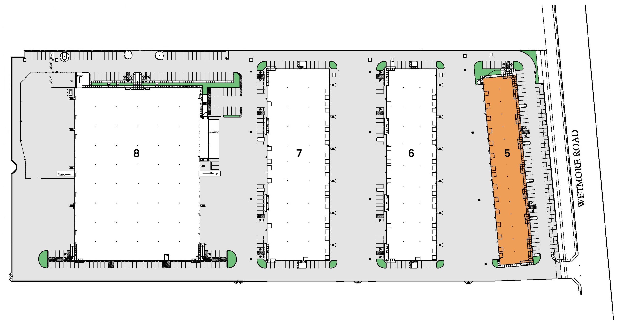
Wetmore-Phase-II-Site-Plan-final-final 2pm
Site Plan
wetmore-5-aerial
Aerial
wetmore-BP-aerial-V4
Wetmore Business Park

RELATED LISTINGS

Office/Distribution
For Lease
80,324
SF
Northlake Business Park 2B
1500 Northlake Pass,
Universal City,
TX,
78148
Office/Distribution
For Lease
80,324
SF
Northlake Business Park 2A
1500 Northlake Pass,
Universal City,
TX,
78148
Office/Warehouse
For Lease
230,873
SF
Fairgrounds Business Park 4
6812 Fairgrounds Pkwy,
San Antonio,
TX,
78238
MAUREEN JOHNSON

Marketing and Leasing Administrator

Maureen is a licensed real estate professional and oversees all aspects of Marketing at Cavender & Hill Properties, concentrating on crafting and executing strategic marketing initiatives that powerfully showcase the company’s properties and services. Her responsibilities encompass brand marketing, digital marketing, and content marketing. She manages and maintains the company website, ensuring its relevance and effectiveness in conveying the company’s message. 

Before joining Cavender & Hill, Maureen dedicated her skills as an English Language Arts and Reading (ELAR) Teacher. In this role, she played a pivotal part in fostering her students’ writing, reading comprehension, listening, and speaking abilities. Additionally, she gained valuable expertise while serving as an Engagement Manager at a Houston-based technology firm. In this capacity, Maureen efficiently supervised the management and delivery of products and services, providing crucial support to clients in achieving their business objectives.

In addition to her professional experience, Maureen holds a Bachelor of Arts in Communication Arts with a concentration in Journalism and a minor in English from the University of the Incarnate Word. Ms. Johnson is an active member of the CREW (Commercial Real Estate Women) Network, an organization dedicated to supporting, empowering, and advancing women in commercial real estate.